
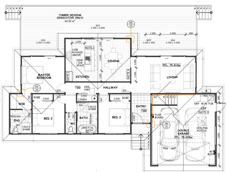
Discover relaxed modern living with the Macrocarpa, an inviting three-bedroom home thoughtfully designed for comfort, functionality, and everyday ease. This smartly laid-out 159m² home features a spacious open-plan living and dining area, seamlessly connected to the heart of the home, the kitchen. With two well-appointed bathrooms, including an ensuite in the master suite, the Macrocarpa offers the perfect balance of privacy and practicality for families or downsizers alike. The double garage provides ample space for vehicles or storage, while the option to add a full-length deck enhances outdoor living. Clean architectural lines and a contemporary aesthetic make the Macrocarpa a timeless choice for those who value style and simplicity. Whether you’re building your first home or looking to down-size, the Macrocarpa is a home that adapts to the way you live.


Trust us to Build Your Forever Home in the Wairarapa
Our Wairarapa builders are renowned for their dedication and expertise in crafting homes that reflect your unique style and needs. All of our builders are fully trade-qualified, and a Licensed Building Practitioner oversees every job to ensure top-quality results you can trust.
When working with our certified builders in the Wairarapa, we guarantee clear, consistent communication and an effective line of dialogue throughout the building process, even if you are not physically present. It’s our number one priority.
Don’t wait to start your home-building journey. Reach out today and discover how our team can make your forever home a reality.


